Zum verkauf steht ein saniertes mfh mit 6 wohnungen zum top preis. Wohnung 1 2 eg wohnung 5 6 stg.
Mehrfamilienhaus Mit 6 Wohnungen Schlusselfertig Bauen
6 zimmer wohnung schlafzimmer bungalow mit einliegerwohnung 3d haus haus bauen loft grundrisse wohnung grundrisse grundriss wohnung haus grundriss.
Grundriss mfh 6 wohnungen. Eine küche wurde entsprechend von dem mieter eingebaut. Neubau mfh achermatta 6 wohneinheiten in stalden. Grundriss mehrfamilienhaus wohnung grundriss erdgeschoss mehrfamilienhaus bauen grundrisse haus pläne haus design architektur wohnen claudia stf haus lukrativer wohnraum für 6 familien das wir uns auch mit größeren bauvorhaben bestens auskennen möchten wir ihnen anhand dieses mehrfamilienhauses zeigen.
Bauplan haus sims 4. Das haus ist aufgeteillt ab liegt vor. Die loggien sind innenliegend und bieten somit schutz vor wind und einblick.
Wohnunggrundriss ein bad für 4 schlafräume bei einer derart großen wohnung. Dieses mehrfamilienhaus mit 6 wohnungen bauen wir mit über 548 m² grundriss und schlüsselfertig in hamburg kiel neumünster norderstedt und im restlichen schleswig holstein. Dieses mehrfamilienhaus mit 6 wohnungen kann auf ihre bedürfnisse hin individuell gestaltet werden werdendie ausstattungslinie schlüsselfertig plus umfasst umfangreiche leistungen details weiter unten.
Mfh mit 6 wohnungen in gepflegter wohnanlage voll vermietet 12559 berlin müggelheim. Jede wohnung hat zwei balkone das heißt die balkone sind ganzjährig nutzbar insbesondere durch die ecklage kann jede himmelsrichtung im sommer wie im winter genutzt werden. 2 3 4 5 6 7 8 familienhäuser und wohnanlagen bauen hauspreis abhängig von ortregion des bauvorhabens hauspreis ohne planungsleistungen ohne bodenbeläge ohne malerarbeiten ohne erdarbeiten enthalten in den schlüsselfertig plus angeboten.
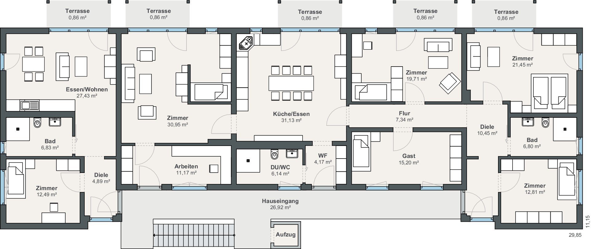
11092019 mehrfamilienhaus mit 6 wohnungen von favorit massivhaus finde weitere grundrisse wenn du auf das bild klickst. 5 von 6 küchen in dem objekt wurden von der eigentümerin eingebracht und werden hier ebenfalls mitverkauft. Unmögliche planung bad bei derart ein einer für großen grundriss.
Das haus ist aufgeteillt ab liegt vor. Das haus ist zweigeschossig mit einer bgf von 177 m2. 2 grossen wohnungen können geteilt werden.
Dazu findest du eine große auswahl an fertig und massivhäusern von unterschiedlichen anbietern auf wwwfertighausde grundrisse einfamilienhaus grundrisse architektur grundrisse erdgeschoss grundrissbeispiel massivhaus grundrisse mehrfamilienhaus. Die wohnungen verfügen alle über moderne nasszellen eine küche einen grosszügigen wohnraum sowie über eine geräumige aussenterrasse.
Die 11 Besten Bilder Von Grundriss Mehrfamilienhaus 6 Einheiten
Die 11 Besten Bilder Von Grundriss Mehrfamilienhaus 6 Einheiten
Mehrfamilienhaus Bauen Mit 2 3 4 5 6 7 8 10 Wohnungen Hausbau
Mehrfamilienhaus Bauen Mit 2 3 4 5 6 7 8 10 Wohnungen Hausbau
Mehrfamilienhaus Mit 6 Wohnungen Von Favorit Massivhaus Finde
Mehrfamilienhaus Cervino Vi Fertighaus
Mehrfamilienhaus Mit 6 Wohnungen Schlusselfertig Bauen
Mehrfamilienhaus Format 6 484 Von Favorit Massivhaus Fertighaus De
Mehrfamilienhaus Cervino Vi Fertighaus
Mehrfamilienhauser Von Streif Renditeobjekte Fur Kapitalanleger
Bildergebnis Fur Grundriss Mehrfamilienhaus Mit Aufzug In 2020
Mehrfamilienhaus Schlusselfertig Bauen 2 3 4 5 6 7 8 Familienhaus
Mehrfamilienhaus Format 6 484 Von Favorit Massivhaus Fertighaus De
Mehrfamilienhaus Mit 8 Whg In Neuhausen Praml Bau
Wohngluck Plane Baue Lebe Wohngluck
Mehrfamilienhauser Von Streif Renditeobjekte Fur Kapitalanleger
Mehrfamilienhaus Cervino Vi Fertighaus
Mehrfamilienhaus Reinekeweg Stuttgart Heumaden Bemmerer
Mehrfamilienhaus Grundriss Beispiele In 2020 Haus Grundriss
Mehrfamilienhaus Beispiel 2 Huf Haus
Wohngluck Plane Baue Lebe Wohngluck
Mehrfamilienhaus Bauen Mit 11 Wohnungen Bauen
Thomsen Ludwig Wohnresidenz Zelgli
Hs Bau Gmbh Crailsheim Mehrfamilienhaus Rot Am See
Mehrfamilienhaus Mit 8 Wohnungen Und Tiefgarage In Munchen
Mehrfamilienhaus Schlusselfertig Bauen 2 3 4 5 6 7 8 Familienhaus
Mehrfamilienhauser Von Streif Renditeobjekte Fur Kapitalanleger
Mehrfamilienhaus Opfingen Zwolf Mal Wohnen Unter Einem Dach
Die 13 Besten Bilder Von Grundriss Mehrfamilienhaus Grundriss
Das Mehrfamilienhaus Fischer Bau Gmbh Hannover Laatzen
7 Rendite Fallen Beim Mehrfamilienhaus Bauen Vermeiden Mmst
Mehrfamilienhaus Beispiel 2 Huf Haus
Mehrfamilienhaus Bauen Mit 2 3 4 5 6 7 8 10 Wohnungen Hausbau
Haas Wob 6 A Von Haas Haus Bautipps De
Ein Mehrfamilienhaus Planen Bauen Hauser Infos Fertighaus De
Mehrfamilienhaus Mit 6 Wohnungen Schlusselfertig Bauen
Mehrfamilienhaus Bauen Individuell Geplant Kern Haus
Hs Bau Gmbh Crailsheim Mehrfamilienhaus Rot Am See
Die 11 Besten Bilder Von Grundriss Mehrfamilienhaus 6 Einheiten
Mehrfamilienhaus Bauen Preise Und Grundrisse
Mehrfamilienhaus Mit 8 Whg In Neuhausen Praml Bau
Mehrfamilienhaus Bauen Mit Viebrockhaus
Unsere Immobilien Herrenberg Charmante 2 5 Zimmer Single
Mehrfamilienhaus Munch Von Baufritz
Dreifamilienhaus Bauen Gse Haus Gmbh
Mehrfamilienhauser Von Streif Renditeobjekte Fur Kapitalanleger
Das Mehrfamilienhaus Fischer Bau Gmbh Hannover Laatzen
Mehrfamilienhaus Bauen Mit Viebrockhaus
Neubau Mehrfamilienhaus Hirschen Pdf Kostenfreier Download
Mfh V Eg Wohnung Ii A Hans Drewes Baugeschaft
Mehrfamilienhaus Bauen Mit 11 Wohnungen Bauen
Michelsen Binder Immobilien Aktuelle Objekte
Mehrfamilienhaus Lilia Wilms Haus
Laker Bau Gmbh Immobilien Mfh Wohrmannsfeld Bielefeld
Mehrfamilienhaus Mit Penthouse 6 We Grundriss Ansichten Querschnitt
Mehrfamilienhaus Mit 8 Whg In Neuhausen Praml Bau
Mehrfamilienhaus Schlusselfertig Bauen 2 3 4 5 6 7 8 Familienhaus
Thomsen Ludwig Wohnresidenz Zelgli
Wohnungen Wilma Immobilien Gmbh
Mehrfamilienhaus In Horst Architekten Blanc Mecklenburg
Grundrisse Mfh Eich Wobags Webseite
Aktuelle Projekte Kreisbau Tubingen
Neubau Altbach 6 Eigentumswohnungen M Bayer Baukoordination
7 Rendite Fallen Beim Mehrfamilienhaus Bauen Vermeiden Mmst
Top Anlageobjekt In Krefeld Nord Attraktives Wgh Mit 6 Wohnungen
Die 12 Besten Bilder Von Mfh Grundriss Mehrfamilienhaus
Mfh V Wohnung Viii Dhh Charakter Hans Drewes Baugeschaft
Mehrfamilienhaus Bauen Individuell Geplant Kern Haus
Grundrisse Und Kaufpreise Der Wohnungen Und Garagen
Mehrfamilienhaus Mit 6 Wohnungen Schlusselfertig Bauen
2017 Moers Kapellen Mehrfamilienhaus Architektur Stahlmann
Mehrfamilienhaus Format 6 484 Von Favorit Massivhaus Fertighaus De
Mehrfamilienhaus Mit 8 Whg In Neuhausen Praml Bau
Mehrfamilienhaus Reinekeweg Stuttgart Heumaden Bemmerer
An Der Rottach Mehrfamilienhaus Immobilienwelt Rehage Partner
Mehrfamilienhaus Preise Grundrisse Fertighausanbieter
Gartenstadt Striesen Haus Tulpe Usd Immobilien Gmbh Dresden
Mfh In Hagen 6 Von 8 Wohnungen Stehen Zum Verkauf Domakler De
Mehrfamilienhaus Landstrasse 166 168 5430 Wettingen Hachler Ag
Geschosswohnungsbau Architekturburo Amendt
Mehrfamilienhaus Bauen Preise Und Grundrisse
Mehrfamilienhaus Bauen Individuell Geplant Kern Haus
Immobilien Rottenburg An Der Laaber Mehrfamilienhaus Mit 6
Neubau Kleines Mfh Mit Drei Wohnungen In Weisswasser
Hecken 6 Dg Dr Maisonettewohnung 5
Grundrisse Und Kaufpreise Der Wohnungen Und Garagen
22 Neue Mietwohnungen In Weissensee










